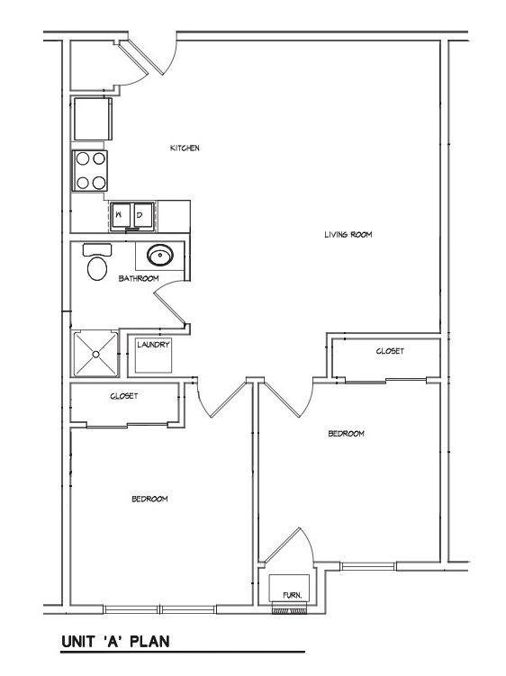
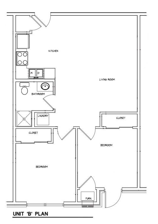
Welcome to Hamilton Village Senior Suites! This is an affordable, 55+ apartment located in the heart of Omaha, designed to offer seniors a comfortable, community-oriented lifestyle. This thoughtfully planned complex features modern, accessible two-bedroom apartments with spacious layouts and amenities tailored to residents' needs. With features like an elevator, secure building access, and in-unit laundry, Hamilton Village combines convenience with comfort. It is in a prime location close to local shops, dining, healthcare facilities, and public transportation.
PROPERTY DETAILS
COMMUNITY FEATURES
55+ Community
Elevator
Controlled Access
Community Room
Storm Shelter
Storage
Non-Smoking Community
APARTMENT FEATURES
Spacious Units
In-unit Washer/Dryer
Handicap Accessible Rooms
Water, Trash, Sewer Included
Income Restrictions
Schedule a Self-Guided TourTERMS
Beds | 2
Baths | 1
Rent |
$800 - $1200




















